Casa 156 m2, 2 plantas y terraza

Casa de 156 m2 en 2 plantas - Casas iberika

Descripción de la casa

278.162€

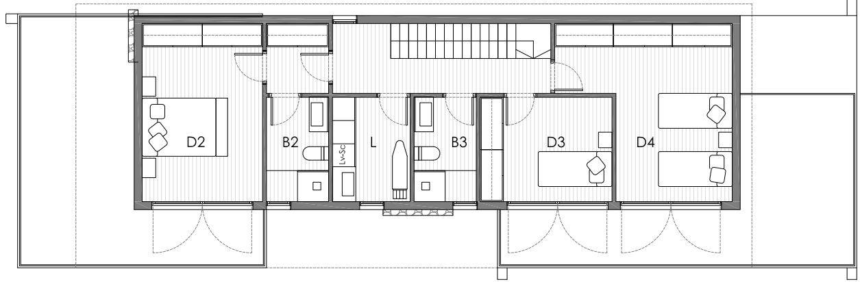
Casa de estilo moderno de dos plantas, cumpliendo el más alto estándar de eficiencia energética. Casa modular de 156 m2 en 2 plantas con terraza cubierta de 14m2 y exterior en acabado monocapa o similar a determinar por el cliente. También es posible construir este modelo en madera e interior en placa de yeso laminado. Baños y cocina alicatados y completamente acabados. El plazo de construcción es significativamente inferior al de la obra tradicional, cumpliendo CTE y normativa urbanística. Precio cerrado.

Construcción llave en mano, todo incluido:

Proyecto: Incluido, con arquitecto, aparejador, visado y dirección de obra
Acometidas: Incluida canalización de agua, luz, desagües y teleco, dentro de parcela
Transporte: Incluido, camiones y grúas a pié de cimentación en un radio de 600 km
Acabados: Vivienda completamente acabada, sólo faltas tú

Galería

Equipamiento

Mobiliario: Armarios de 180 cm en habitaciones y 220 cm en habitación principal
Cocina: Armarios de 180 cm en habitaciones y 220 cm en habitación principal
Baños: Alicatado completo, con mampara, lavabo con mueble y espejo
Ventanas: Alemanas Brügmann de altas prestaciones, triple cristal de seguridad, 4/16/4/16/4 rellena de gas argón con persianas motorizadas
Puertas: Principal acorazada, interiores macizas con bisagras ocultas ajustables
Suelos: Gres porcelánico a elegir por el cliente
Cuarto de servicio: Para lavadora, secadora, planchado, almacén

Eficiencia energética

Nivel energético: A+++
Aislamiento: SATE sin puentes térmicos de máximas prestaciones
Climatización: Incluida canalizada a cada habitación, con intercambiador de doble flujo con bomba de calor y aerotermia
Instalación Fotovoltaica: Preinstalación de placas solares derivadas a cuadro eléctrico
Punto recarga coche eléctrico:

¿Te interesa esta casa?

INFO IBerika
Acepto la política de privacidad 

Otros modelos de casas prefabricadas

571.952€
325.344€
373.635€